Great Wide Open Vacation Beach Rental

Luxury Oceanfront Hollywood Beach Mansion
13 Guests | 6 Bedrooms | 3 Baths;
Description
Details
Amenities
Booking Terms
Reviews
Availability

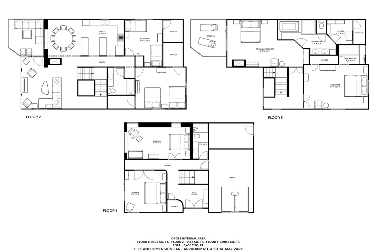
Welcome to Great Wide Open Vacation Beach Rental, a luxury oceanfront home on Hollywood Beach where the sound of the waves and wide-open views set the tone for your stay. This modern three-story retreat is designed for families and groups traveling together, with six bedrooms spread across three levels—giving everyone space to be together to unwind. With direct beach access, generous indoor and outdoor living areas, and thoughtful amenities throughout, this is an unforgettable coastal escape.

**Guest Access
Guests enjoy private, exclusive access to the entire home.

Check-in is seamless with keyless self-entry. Once booked, your Guest Portal will provide everything you need, including entry codes, WiFi details, and local recommendations. We’re always available to ensure you have a smooth and comfortable stay.

**Booking process
After booking, you will receive a message asking you to confirm your reservation and digitally sign our standard rental agreement.
Once signed, you will be emailed access to your Guest Portal, where all important stay information lives.
Your entry code will be released 48 hours before check-in inside the Guest Portal and sent again by text on the day of arrival.
Early check-in may be requested through the Guest Portal when available.
A $25 per dog, per stay pet fee applies and can be paid through the Guest Portal or HostCo Store.
If you do not receive our emails, please check your spam or junk folder.

**Parking
Garage: 1 vehicle
Driveway: 2 uncovered parking spaces
Street: free street parking available on La Brea

**The Space
This sunlit, oceanfront home is designed for comfort, connection, and effortless beach living. The main living level features a plush sectional, Smart TV, and sweeping ocean views that flow naturally into the dining area and fully stocked kitchen. With space to gather and quiet corners to retreat, the layout works beautifully for larger groups.

**Where you’ll sleep
Bedroom 1: King bed, ocean views, ensuite spa bathroom
Bedroom 2: King bed, Smart TV
Bedroom 3: Queen bed, Smart TV
Bedroom 4: Two twin beds
Bedroom 5: King bed
Bedroom 6: King bed
Fresh linens, pillows, and Smart TVs are provided throughout.

**Bathrooms
Spa bathroom with soaking tub and walk-in rain shower
Full bathroom with shower/tub combination
Half bath
Bathrooms are stocked with shampoo, conditioner, body wash, fresh towels, linens, and a hair dryer.

**Outdoor space
Expansive oceanfront deck with seating and fire pit
Outdoor dining for eight with panoramic ocean views
Large gas BBQ grill
Direct access to Hollywood Beach
Beach gear provided (chairs, boogie boards, umbrella, towels)

**What this place offers
Direct beachfront location
Ocean views from main living areas
Dining seating for 10
Fully stocked kitchen with high-end appliances
Coffee station with Keurig and complimentary pods
Dedicated workspace with natural light
High-speed WiFi and Smart TVs in every room
Full laundry room with washer and dryer
Pack ’n Play, high chair, and baby monitor upon request
Dog-friendly (no cats)

**Love from our Guests

"Wow!!!! Our families stay (7 adults, 1 child and dog) at the GREAT WIDE OPEN was absolutely fantastic. The host was amazing and when we had to extend our stay (construction delays) the host was able to accommodate our request. There is plenty of room at the property and the kitchen can accommodate many cooks in the kitchen 😋 Rooms are very spacious and the 3rd floor primary room was luxurious!
You will want to take the views with you when you leave for sure!! I will visit here again and recommend this beach rental highly. "Nora

"Our family had soo much FUN. The house was very comfortable. We appreciated the quick response to our questions from our host Lisa." Paula

**Neighborhood Overview
Hollywood Beach offers the perfect blend of laid-back coastal living and nearby adventure. Walk to cafés, restaurants, and local shops, or head a few minutes down the road for paddleboarding, jet skis, boat tours, and island excursions. Malibu and Santa Barbara are both easy day trips.

**Final thought
Great Wide Open is ideal for families and groups looking for an oceanfront stay that feels spacious, modern, and relaxed—where beach days start at your doorstep and evenings end with sunsets over the water.

Callouts
  • Allows pets
  • Internet
  • Fireplace
  • Oceanfront
PropertyType
  • House
Accommodation
  • Entire Home
CheckInType
  • Lockbox
HouseRules
  • Maximum occupancy: 13
  • Children welcome
  • Infants welcome
  • Smoking not allowed
  • Wheelchair inaccessible
  • Minimum age of primary renter: 25
  • Pets welcome
Bathrooms
  • 3 Bathrooms
  • Ground Floor Bathroom – Shower, Toilet
  • Second Floor Bathroom – Combination Tub/Shower, Toilet
  • Third Floor Ocean View Ensuite – Jetted Tub, Shower, Toilet
  • All bathrooms have hotel-style linens, shampoo, conditioner and body wash, and a hair dryer.
Bedrooms
  • 6 Bedrooms, sleeps 10-13
  • Ground Floor King Bedroom – 1 King Bed
  • Ground Floor Queen Bedroom – 1 Crib, 1 Queen Bed
  • Second Floor 2 Queens Bedroom – 2 Queen Beds
  • Second floor 2 Twins Bedroom – 2 Twin Beds
  • Third Floor Ocean View King Bedroom – 1 King Bed
  • Third Floor King Bedroom – 1 King Bed, 2 Twin Beds
  • Bedrooms have closets and Smart TVs with High Quality Linens
LocationTypeFeatures
  • Water View
  • Beach
  • Ocean
  • Beachfront
  • Beach View
  • Near Ocean
  • Oceanfront
  • Ocean View
  • Waterfront
  • Shared Beach Access
PopularAmenityFeatures
  • Internet
  • Fireplace
  • Air Conditioning
  • Central Heating
  • Linens Provided
  • Towels Provided
  • Washing Machine
  • Clothes Dryer
  • Hot Water
  • Private Living Room
  • Hair Dryer
  • Iron & Board
  • Wifi
  • Ceiling Fans
  • Basic Soaps
  • Paper Towels
  • Shampoo
  • Toilet Paper
  • Hangers
  • Private Entrance
  • Extra Pillows & Blankets
  • Ethernet
  • Free Internet
  • Body Soap
  • Hair Conditioner
  • Shower Gel
  • Clothing Storage (closet or wardrobe)
  • Clothes Drying Rack
  • Portable Fans
KitchenFeatures
  • Kitchen
  • Refrigerator
  • Stove
  • Oven
  • Microwave
  • Dishwasher
  • Dishes & Utensils
  • Spices/Pantry Items
  • Coffee Maker
  • Toaster
  • Ice Maker
  • Freezer
  • Blender
  • Kettle
  • Lobster Pot
  • Pots & Pans
  • Kitchen Island
  • Dining Table
  • Baking Sheet
  • Barbeque/Grill Utensils
  • Bread Maker
  • Coffee
  • Rice Maker
  • Wine Glasses
DiningFeatures
  • Child's Highchair
EntertainmentFeatures
  • Television
  • Games/Board Games
  • Books
  • Smart TV
OutdoorFeatures
  • Outdoor Grill
  • Balcony/Terrace
  • Water Sports Gear
  • Beach Essentials
  • Fire Pit
  • Outdoor Seating
  • Sun Loungers
OtherServiceFeatures
  • Luggage Dropoff Allowed
  • Cleaning Before Checkout
ThemeFeatures
  • Adventure
  • Family
  • Romantic
  • Tourist Attractions
AttractionFeatures
  • Marina
  • Museums
SportFeatures
  • Cycling
  • Deepsea Fishing
  • Fishing
  • Surf Fishing
  • Golf
  • Jet Skiing
  • Kayaking
  • Parasailing
  • Pier Fishing
  • Sailing
  • Surfing
  • Swimming
  • Wind Surfing
LeisureFeatures
  • Outlet Shopping
  • Paddle Boating
  • Whale Watching
  • Boating
  • Wildlife Viewing
  • Water Sports
LocalFeatures
  • Fitness Center
  • Hospital
  • Laundromat
SafetyFeatures
  • Carbon Monoxide Detector
  • Deadbolt Lock
  • Emergency Exit Route
  • Fire Emergency Contact
  • Fire Extinguisher
  • First Aid Kit
  • Medical Emergency Contact
  • Exterior Lighting
  • Police Emergency Contact
  • Smoke Detector
  • Enhanced Cleaning Practices
  • Cleaning Disinfection
  • Common Surface Disinfectant Cleaned
  • Linens High Temp Wash
  • Cleaning Products
FamilyFeatures
  • Baby Gate
  • Baby Bath
  • Baby Monitor
  • Changing Table
  • Children's Dinnerware
  • Fireplace Guards
  • Pack N Play/Travel Crib
  • Room Darkening Shades
  • Window Guards
  • Children's Books & Toys
ParkingFeatures
  • Parking
  • Garage
  • Free Parking
  • Street Parking
  • Free Parking On Premises
ListingExpectationFeatures
  • Requires Stairs
  • Cameras/Surveillance
CheckOutTasksFeatures
  • Throw Away Trash
  • Maximum occupancy: 13
  • Children welcome
  • Infants welcome
  • Smoking not allowed
  • Wheelchair inaccessible
  • Minimum age of primary renter: 25
  • Pets welcome
Cancellation Policy:One hundred percent (100.00%) of the total booking charges (less $25.00 taxable cancellation fee) will be refunded if the cancellation is made more than 30 days prior to the arrival date of the reservation. Fifty percent (50.00%) of the total booking charges (less $25.00 taxable cancellation fee) will be refunded if the cancellation is made more than 15 days prior to the arrival date of the reservation. For cancellations made within 15 days prior to the arrival date, no refund will be issued. Grace period with free cancellation for 24 hours after booking if arrival is at least 48 hours away at time of booking.

From $2000 - 2000/night

Stay Connected

Address

4600 Adohr Lane, Suite A, 
Camarillo, CA

Prefer to book on Airbnb?

Chic Beach Vacations
linkedin facebook pinterest youtube rss twitter instagram facebook-blank rss-blank linkedin-blank pinterest youtube twitter instagram